© 2018 All rights reserved / a+ architects / Ioannis Zacharakis

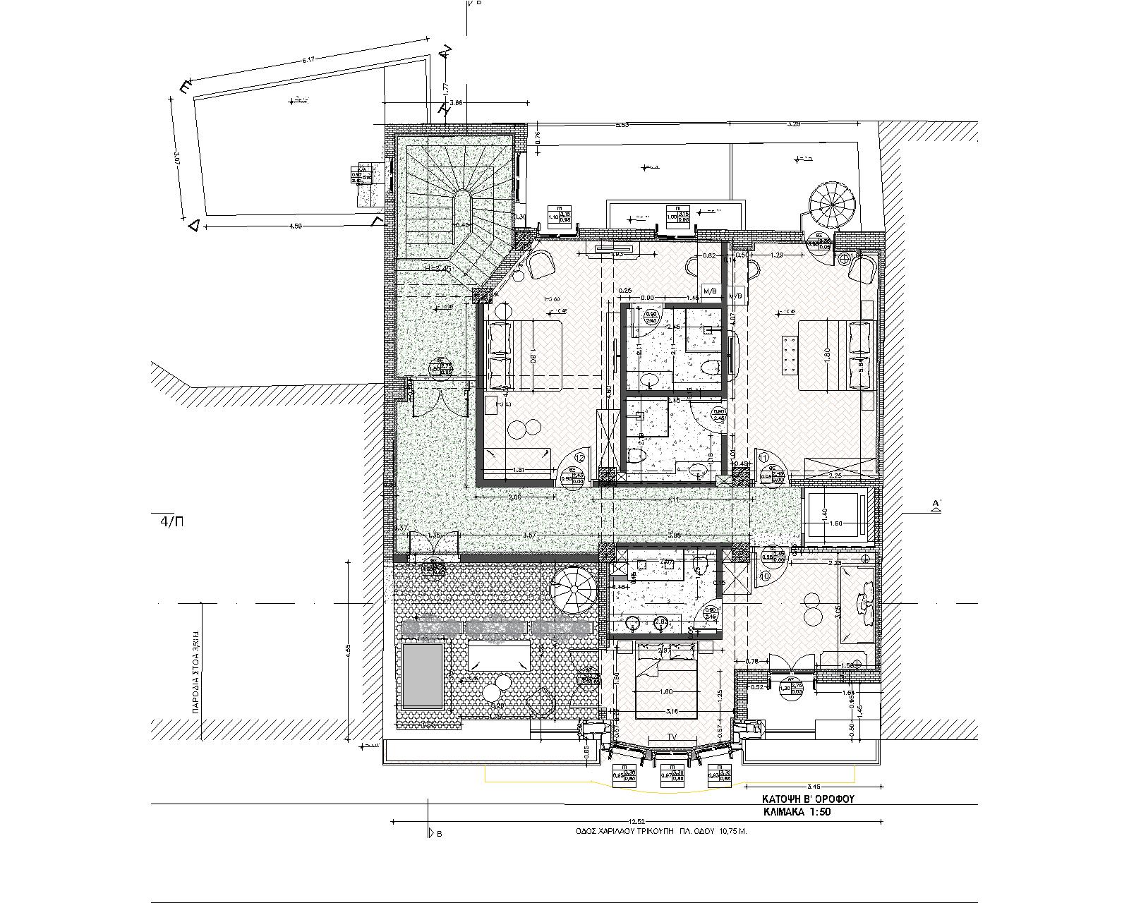
Architectural Proposal at Charilaou Trikoupi

Category
Hotels
About This Project

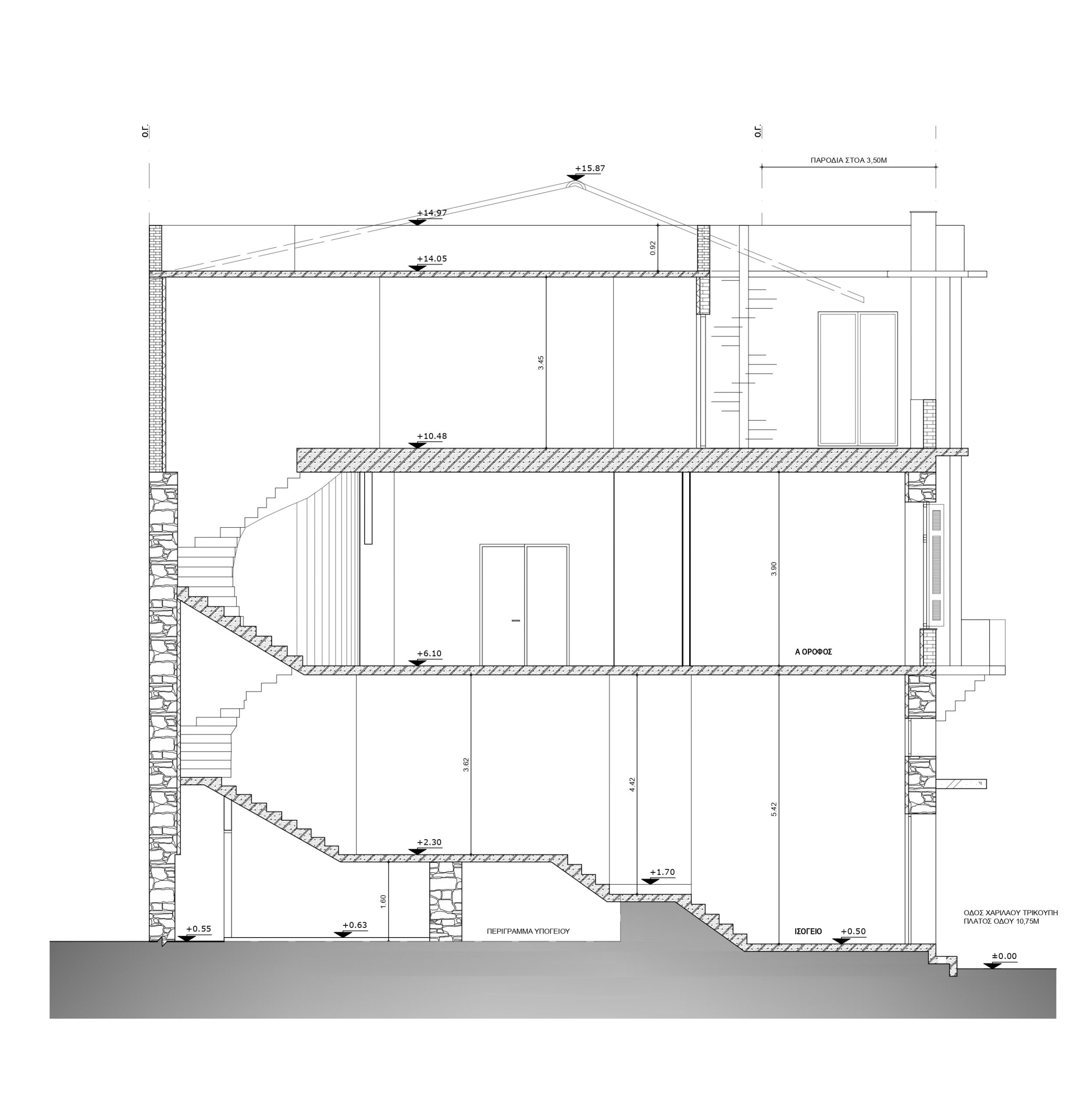
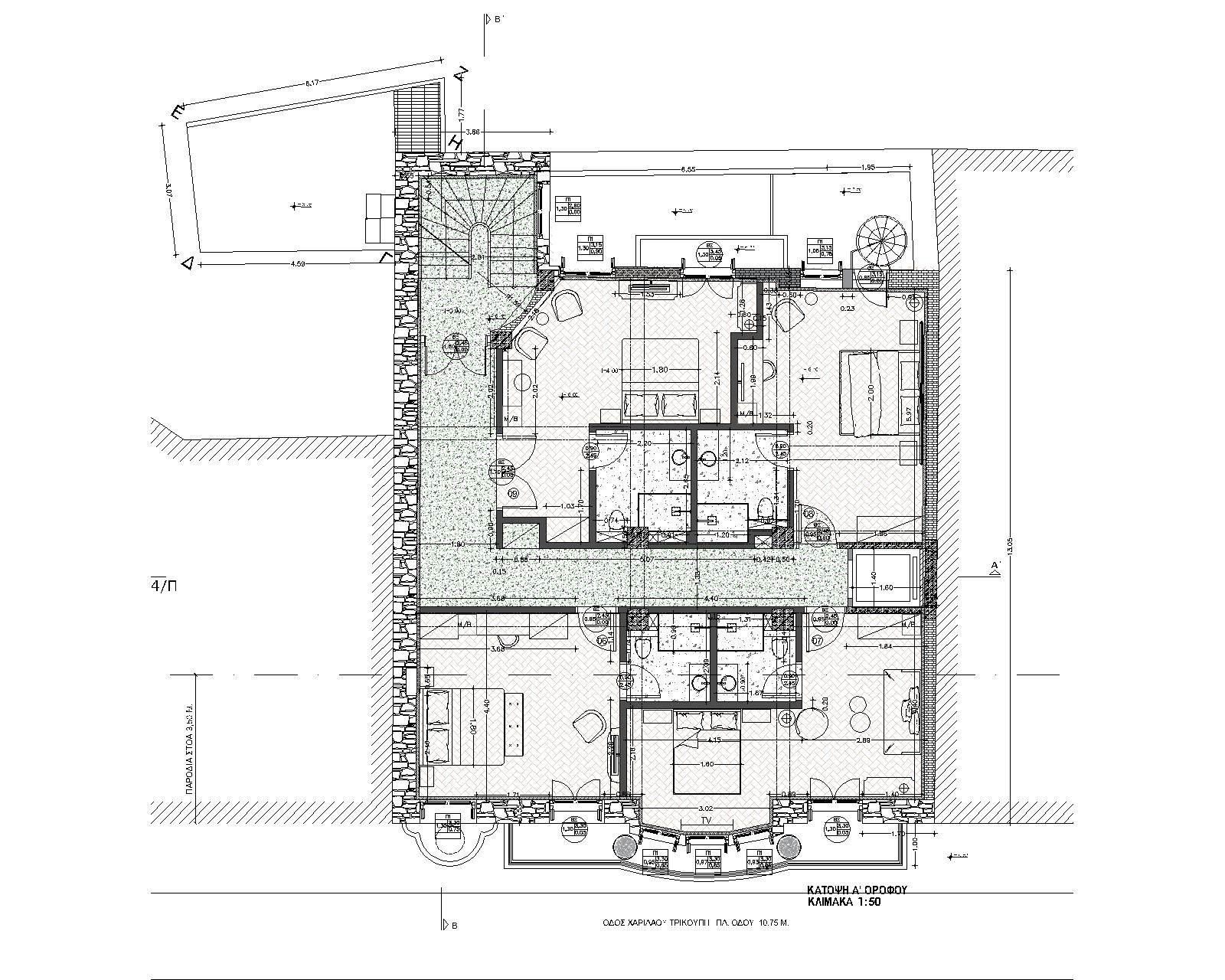
Project : Architectural Proposal at Charilaou Trikoupi

Locations : Charilaou Trikoupi 123 , Athens Greece

Designed By: a+ architects, Ioannis_Zacharakis

Project Collaborators: Vannesa Charalampidou , Christos Karnavezos , Konstantinos Korres , Petros Kaisaris LUUN